FGP4X復合式高速進排氣閥
FGP4X復合式高速進排氣閥主要用于水泵出口及給水、排水管線中,具有自動排氣與自然補氣的功能,提高輸水管路的排送效率,降低排送成本。一旦管道內產生負壓,迅速導入外界空氣,保護管線免受壓破壞;并可迅速排出管道 中的空氣。
產品概述
FGP4X復合式高速進排氣閥主要用于水泵出口及給水、排水管線中,具有自動排氣與自然補氣的功能,提高輸水管路的排送效率,降低排送成本。一旦管道內產生負壓,迅速導入外界空氣,保護管線免受壓破壞;并可迅速排出管道 中的空氣。
產品特點
1、密封可靠,特殊密封設計;
2、自動排氣與自動補氣,無須人去操作;
3、具有三種功能:a.排出管道中大量空氣 b.系統運行中的小量排氣 c.高速導入外界空氣;
4、經久耐用、小浮球按固定軌跡運動,不會碰撞殼體;
5、關閉力大,較其他排氣閥增加了配重—加大了關閉力;
6、較其他種類的排氣閥的高度尺寸小(其他排氣閥為閥蓋中央排氣);
7、不會有壓力水沖刷浮球,引起浮球的誤動關閉。
工作原理
快速、大量排氣。排氣口采用通透式結構,當管道內開始進水時,能快速排出管中的氣體,閥內流道結構設計利用空氣動力學原理,確保在高速排氣時浮球不會被吹起,實現全壓條件下排氣。
2.微量排氣。當管內注滿水時,主排氣口封住,運行過程中產生的少量積氣,會通過卷簾式微量排氣閥排出,以避免管內氣體的聚集;卷簾式微量排氣閥采用卷簾密封式結構,靈敏的動作能快速的排出累積的少量氣體且能快速密封,大大減少了被雜物堵塞的可能性,相同的排氣口能適應很大的排氣壓力范圍,同時具有自凈功能。
3.快速吸氣。當管道內水流中斷或產生負壓時,主浮球會下落,打開主排氣口,快速吸入氣體,補充到管內,以保護管道不受損壞。同時通過閥內流道結構的獨特設計,可以實現進氣量及進氣速度可控。
技術參數
公稱壓力:1.0MPa、1.6MPa、2.5MPa
適用介質:清水,污水,原水
介質溫度:0-80℃
排氣性能參數表
公稱尺寸(mm) | 15 | 20 | 25 | 32 | 40 | 50 | 65 | 80 | 100 | 150 | 200 | 300 |
ΔP為0.035MPa時 | 60 | 110 | 170 | 250 | 400 | 670 | 1600 | 2100 | 2900 | 6100 | 11800 | 38000 |
ΔP為0.035MPa時 | 95 | 170 | 430 | 670 | 1080 | 2800 | 3200 | 4850 | 10850 | 18300 | 49400 |
排氣閥線性曲線

零部件材料
主排氣閥 | 微量排氣閥 | ||
閥體 | 球磨鑄鐵 | 閥座 | 鑄鋼 |
閥蓋 | 球墨鑄鐵 | 閥蓋 | 增強尼龍 |
閥座 | 銅 | 閥芯 | 發泡聚丙烯 |
浮球及緩沖盤片 | 不銹鋼 | 密封條 | 丁腈橡膠 |
密封件 | 丁腈橡膠 | 夾持桿 | 增強尼龍 |
過濾網 | 不銹鋼 | O型圈 | 丁腈橡膠 |
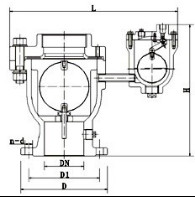
結構尺寸


PN=1.0MPa
公稱通徑 | 外形尺寸(mm) | 法蘭尺寸(mm) | |||
長度L | 高度H | 外徑D | 螺栓孔中心圓直徑K | 螺栓孔n-d | |
DN50 | 250 | 260 | 165 | 125 | 4-18 |
DN65 | 280 | 280 | 185 | 145 | 4-18 |
DN80 | 315 | 340 | 200 | 160 | 8-18 |
DN100 | 413 | 334 | 220 | 180 | 8-18 |
DN125 | 535 | 485 | 250 | 210 | 8-18 |
DN150 | 580 | 520 | 285 | 240 | 8-22 |
DN200 | 668 | 640 | 340 | 295 | 8-22 |
DN250 | 770 | 780 | 395 | 350 | 12-22 |
DN300 | 850 | 920 | 445 | 400 | 12-22 |
PN=1.6MPa
公稱通徑 | 外形尺寸(mm) | 法蘭尺寸(mm) | |||
長度L | 高度H | 外徑D | 螺栓孔中心圓直徑K | 螺栓孔n-d | |
DN50 | 250 | 260 | 165 | 125 | 4-18 |
DN65 | 280 | 280 | 185 | 145 | 4-18 |
DN80 | 315 | 340 | 200 | 160 | 8-18 |
DN100 | 413 | 334 | 220 | 180 | 8-18 |
DN125 | 535 | 485 | 250 | 210 | 8-18 |
DN150 | 580 | 520 | 285 | 240 | 8-22 |
DN200 | 668 | 640 | 340 | 295 | 12-22 |
DN250 | 770 | 780 | 405 | 355 | 12-26 |
DN300 | 850 | 920 | 460 | 410 | 12-26 |
服務承諾
(1) 嚴格按照合同要求,提供符合設計標準,質量合格的產品。
(2) 嚴格檢查和控制原材料、原器件、配套件的進廠質量。
(3) 保證所供設備加工工藝完善、檢測手段完備。產品絕不帶缺陷出廠。
(4) 對涉及分包商的供貨、質量、設備性能、技術接口、服務等方面問題全部責任。按合同規定的關鍵部件必須符合有關資質的要求,并經需方認可。
(5) 按合同規定向監造單位提供有關部門標準和圖紙,并為監造提供方便并對監造設備的停工待檢部位提前7天通知需方及監造代表,需方所派監造是督促我方按標準生產合格產品,但并不減我方的一切質量責任。
(6) 對設備制造過程中出現的質量缺陷及時向需方和監造代表通報、不隱瞞。若設備缺陷超過合同規定的標準,供方無條件更換。在安裝和試運行過程中,設備出現質量問題,先處理問題,再分清責任,一切以滿足工程進度需要為準則。
(7) 為所供的設備在制造、運輸、裝卸過程中投保,-旦發生意外,我方將按需要對所供設備盡快進行免費更換、修理,直到需方滿意為止。
(8) 在開箱過程中如發現缺件及其他原因引起的零部件丟失,我方負責盡快免費補齊所缺零部件。在設備的安裝、調試過程中以及今后在設備運行中發現的質量問題,如屬我方原因,我方承擔責任。
(9) 按時向需方提供按合同規定的全部技術資料和圖紙。有義務在必要時邀請需方參與我方的技術設計審核。
(10) 按需方要求的時間到現場進行技術服務,指導需方按我方的技術資料和圖紙的要求進行安裝、試運行及試生產。
(11) 對于需方先購的與合同設備有關的配套設備,我方主動提供滿足設備接口要求的技術條件和資料。
(12) 嚴格執行供需雙方就有關問題召開會議的紀要或協議。
(13) 按合同規定免費為需方舉辦有關設備安裝、調試、使用、維護技術的業務培訓班。
(14) 加強售前、售中、售后服務,把"24小時服務"、"超前服務"、"全過程服務"、 "終身服務"貫徹在產品制造、安裝、調試、大修的全過程。
(15) 接到需方反映的質量問題信息后,在24小時之內作出答復或派出服務人員,盡快到達現場,做到用戶對質量不滿意,服務不停止。
(16) 免費為產品提供終身維護,凡我廠用戶,均建立了詳盡的用戶檔案,我廠售后服務。人員實行定期回訪,巡視制度,指導用戶的日常維護,及時指出并解決可能出現的故障。
(17) 隨時滿足需方對備品備件的要求,終身為用戶提供質優價廉的零配件。
|
||||||||||||||||||||||||
![]() |
||||||||||||||||||||||||
| ||||||||||||||||||||||||









