BQ41F型保溫夾套式手動球閥PN16~PN25
具有良好的保溫保冷特性,且閥門的通徑與管徑一致,同時又能有效降低管路中介質熱量損失。主要用于石油、化工、冶金、制藥、食品等各類系統中,以輸送常溫下會凝固的高粘度介質。
產品說明
BQ41F型保溫夾套式手動球閥PN16~PN25具有良好的保溫保冷特性,且閥門的通徑與管徑一致,同時又能有效降低管路中介質熱量損失。主要用于石油、化工、冶金、制藥、食品等各類系統中,以輸送常溫下會凝固的高粘度介質。
執行標準
設計標準:ASME B 16.34、GB/T12224 結構長度:ASME B 16.10、GB/T12221 連接法蘭:ASME B 16.5、JB/T 79 試驗和檢驗:JB/T9092、API 598
性能參數
BQ41F型保溫夾套式手動球閥PN16~PN25性能參數
| 型號 | BQ41F-16C | BQ41F-25C | BQ41F-16P | BQ41F-25P | |
| 工作壓力(MPa) | 1.6 | 2.5 | 1.6 | 2.5 | |
| 適用溫度(℃) | ≤200 | ||||
| 適用介質 | 非腐蝕性介質 | 腐蝕性介質 | |||
| 材料 | 閥體、閥蓋 | 碳鋼 | 鉻鎳鈦鋼 | ||
| 球體 | 鉻鎳鋼 | ||||
| 閥座 | 聚四氟乙烯或氧化橡膠 | 聚四氟乙烯 | |||
| 閥桿 | 沉淀硬化鋼 | 鉻鎳鋼 | |||
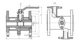
外形連接尺寸
| 公稱通徑 | 主要外形尺寸和連接尺寸 | |||||||
| L | D | D1 | D2 | b | Z-d | H | W | |
| BQ41F-16C BQ41F-16P BQ41F-16R BQ641F-16C BQ641F-16P BQ641F-16R BQ941F-16C BQ941F-16P BQ941F-16R | ||||||||
| 15 | 108 | 95 | 65 | 45 | 14 | 4-14 | 95 | 160 |
| 20 | 117 | 105 | 75 | 55 | 14 | 4-14 | 101 | 160 |
| 25 | 127 | 115 | 85 | 65 | 14 | 4-14 | 106 | 160 |
| 32 | 140 | 135 | 100 | 78 | 16 | 4-18 | 112 | 230 |
| 40 | 165 | 145 | 110 | 85 | 16 | 4-18 | 125 | 230 |
| 50 | 178 | 160 | 125 | 100 | 16 | 4-18 | 135 | 230 |
| 65 | 191 | 180 | 145 | 120 | 18 | 4-18 | 170 | 400 |
| 80 | 203 | 195 | 160 | 135 | 20 | 8-18 | 193 | 400 |
| 100 | 229 | 215 | 180 | 155 | 20 | 8-18 | 265 | 700 |
| 125 | 356 | 245 | 210 | 185 | 22 | 8-18 | 310 | 700 |
| 150 | 394 | 280 | 240 | 210 | 24 | 8-23 | 355 | 1100 |
| 200 | 457 | 335 | 295 | 265 | 26 | 12-23 | 410 | 1500 |
| 252 | 533 | 405 | 355 | 320 | 30 | 12-25 | 560 | 1500 |
尺寸圖

安裝注意事項
1.安裝施工必須小心,切忌撞擊閥門。
2.安裝前,應將球閥作一檢查,核對規格型號,鑒定有無損壞,尤其對于閥桿。還要轉動幾下,看是否歪斜,因為運輸過程中,最易撞歪閥桿。還要清除閥內的雜物。
3.球閥起吊時,繩子不要系在手輪或閥桿上,以免損壞這些部件,應該系在閥體上。
4.對于球閥所連接的管路,一定要清掃干凈。可用壓縮空氣吹去氧化鐵屑、泥砂、焊渣和其他雜物。這些雜物,不但容易擦傷球閥的密封面,其中大顆粒雜物(如焊渣),還能堵死小閥門,使其失效。
5.安裝時要留有閥柄旋轉的位置。6.球閥不能用作節流。 7.帶傳動機構的球閥應直立安裝。
|
||||||||||||||||||||||||
![]() |
||||||||||||||||||||||||
| ||||||||||||||||||||||||









